Добро пожаловать на http://vipplan.ru

Випплан Нижнекамск - это тысячи проектов домов в нашем каталоге!

Вы всегда сможете найти для себя проект дома вашей мечты! Даже если этого не случилось, мы готовы в любую минуту предложить проект индивидуального дома.

Забыли пароль?
Вы еще не регистрировались?

Перейдите по ссылке ниже на страницу регистрации.

Регистрация...

Внимание!!!

В проектную документацию могут быть внесены изменения любой сложности, в соответствии в Вашими пожеланиями!

Полезные статьи

Виды бассейнов

В наше время, строительство бассейна на территории своего участка, не такая уж и роскошь. Выбор видов и стилей бассейна, на сегодняшний день, очень большой....

Проект дома

Строительство дома начинается с подготовительного этапа, основной частью которого является проект. Разработка дизайнерского проекта сопровождается оформлением документов после выбора участка....

Проекты домов и коттеджей > Каталог проектов домов > Одноэтажный дом с террасами, тремя спальнями и парной Vg3605

Одноэтажный дом с террасами, тремя спальнями и парной Vg3605

Одноэтажный дом с террасами, тремя спальнями и парной
Зарегистрируйтесь

Проект № Vg3605


Техническое описание
Общая площадь: 146.8 м2
Жилая площадь: 57.31 м2
Высота здания: 5.6 м
Размеры дома: 14.83м×18.78м
Кол-во комнат: 4
Цокольный этаж: нет
Гараж: нет
Мансарда: нет

Kонструкция
Фундамент: ленточный
Перекрытия: монолитные

Архитектурный раздел
Конструктивный раздел
Инженерный раздел
АР+КР - 52 000 (Со скидкой 20%)
АР+КР+ИР - 103 450 (Со скидкой 50%)
Одноэтажный дом с террасами, тремя спальнями и парной с размерами здания 14,83 х 18,78 м. Фундамент – монолитная ж/б стена в грунте (щелевой). Наружные стены – газобетонные блоки с утеплением минеральной ватой и отделкой фиброцементными панелями по контробрешетке. Внутренние стены – газобетонные блоки. Перегородки – газобетонные блоки. Пол этажа – пол по грунту. Перекрытие плоской кровли – монолитная ж/б плита. Крыша плоская. Кровля – полимерно-битумный кровельный материал. Окна — металлопластиковые.
Генплан застройки участка / Паспорт проекта 7000 руб / 10000 руб
Инженерный раздел (полный) 51450 руб (73500 руб)
Смета на строительство 36750 руб
Теплотехнический расчет материалов стен Бесплатно
Стоимость проекта со незначительнми изменениями 61300 руб
Стоимость проекта со средними изменениями* 72400 руб
Стоимость проекта со значительными изменениями** 75300 руб

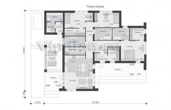
План первого этажа


Тамбур - 3,45 м2
Гардероб - 5,36 м2
Холл - 8,23 м2
Спальня - 16,21 м2
Гардероб - 5,91 м2
Ванная - 6,91 м2
Ванная - 7,14 м2
Спальня - 12,22 м2
Коридор - 8,91 м2
Спальня - 12,74 м2
Гардероб - 5,13 м2
Бойлерная - 7,22 м2
Кладовая - 5,32 м2
Кухня - 15,28 м2
Одноэтажный дом с террасами, тремя спальнями и парной Одноэтажный дом с террасами, тремя спальнями и парной Одноэтажный дом с террасами, тремя спальнями и парной Одноэтажный дом с террасами, тремя спальнями и парной

Модификации проектов

Внесение изменений и привязка к участку строительства

В любой из проектов от компании VIPplan - Нижнекамск по вашему желанию могут быть внесены изменения в материалы стен, материалы наружной отделки дома, а также будет произведена адаптация проекта под конкретный регион строительства (с учетом грунтов региона, геологических особенностей вашего участка и местных климатических условий) - БЕСПЛАТНО !!! (кроме проектов со скидкой и проектов наших партнеров).

Любой из проектов, размещенных на сайте nijnekamsk.vipplan.ru мы можем выполнить из требуемых вам строительных материалов: ячеистый бетон (газобетон, пеноблок), керамоблок, кирпич, шлакоблок, бетонный блок, дерево (брус, клееный брус), каркасная технология (деревянный каркас, металлокаркас (ЛСТК)).

Фасад дома и его наружную отделку так же возможно выполнить с применением различных облицовочных материалов: структурной штукатурки, (с утеплителем и без), сайдингом (пластиковый или металлосайдинг), фиброплитами, кирпича.

 
6 Избранные
проекты

Доставка проектов по России: Москва (Московская область), Санкт-Петербург (Ленинградская область), Краснодар, Ростов-на-Дону, Ставрополь, Сочи, Волгоград, Новосибирск, Белгород, Брянск, Воронеж, Саратов, Хабаровск, Астрахань, Нальчик, Владикавказ, Екатеринбург, Тюмень, Самара, Нижний Новгород, Казань, Пермь, Уфа, Челябинск, Красноярск, Ханты-Мансийск, Иркутск, Курган, Оренбург, Омск, Томск, Барнаул, Новокузнецк, Кемерово, Абакан, Чита, Якутск, Южно-Сахалинск, Петропавловск-Камчатский и страны ближнего зарубежья: Белоруссия, Украина, Казахстан