Добро пожаловать на http://vipplan.ru

Випплан Нижнекамск - это тысячи проектов домов в нашем каталоге!

Вы всегда сможете найти для себя проект дома вашей мечты! Даже если этого не случилось, мы готовы в любую минуту предложить проект индивидуального дома.

Забыли пароль?
Вы еще не регистрировались?

Перейдите по ссылке ниже на страницу регистрации.

Регистрация...

Внимание!!!

В проектную документацию могут быть внесены изменения любой сложности, в соответствии в Вашими пожеланиями!

Полезные статьи

Купить готовый проект дома или заказать индивидуальный?

Перед началом строительства дома возникает необходимость в проекте дома и тут встает вопрос: Купить готовый проект дома или заказать индивидуальный на заказ? Каждый из вариантов по своему хорош и имеет как свои плюсы так и минусы...

Плиты перекрытий

Железобетонные плиты очень широко используются в строительстве. При помощи них возводят как промышленные объекты так жилые. Железобетонные плиты перекрытия являются главной частью любого строительного объекта вне зависимости от этажности....

Проекты домов и коттеджей > Каталог проектов домов > Одноэтажный дом с гаражом и террасой Vg2448

Одноэтажный дом с гаражом и террасой Vg2448

Одноэтажный дом с гаражом и террасой
Зарегистрируйтесь

Проект № Vg2448


Техническое описание
Общая площадь: 116.82 м2
Жилая площадь: 65.55 м2
Высота здания: 6.2 м
Размеры дома: 16.98м×12.22м
Кол-во комнат: 4
Цокольный этаж: нет
Гараж: нет
Мансарда: нет

Kонструкция
Фундамент: Монолитная ж/б плита
Перекрытия: Деревянные балки
Материал стен: Газобетон

Архитектурный раздел
Конструктивный раздел
Инженерный раздел
АР+КР - 48 000 (Со скидкой 20%)
АР+КР+ИР - 88 950 (Со скидкой 50%)
Проект одноэтажного жилого дома с размерами здания 16,98 x 12,22 м. Фундамент - монолитная ж/б плита. Наружные стены - газобетонный блок, минераловатные плиты и отделка фасадной штукатуркой. Внутренние стены: газобетонный блок. Перегородки - газобетонный блок. Пол этажа - пол по фундаментной плите. Перекрытие чердачное - деревянные балки перекрытия. Крыша - двускатная. Кровля - металлочерепица. Окна - металлопластиковые.
Генплан застройки участка / Паспорт проекта 7000 руб / 10000 руб
Инженерный раздел (полный) 40950 руб (58500 руб)
Смета на строительство 29250 руб
Теплотехнический расчет материалов стен Бесплатно
Стоимость проекта со незначительнми изменениями 57050 руб
Стоимость проекта со средними изменениями* 65900 руб
Стоимость проекта со значительными изменениями** 68200 руб

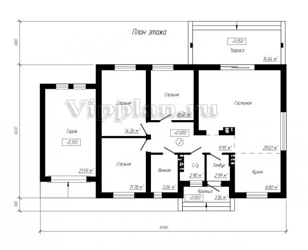
План первого этажа


Тамбур - 2,99 кв м
Холл - 9,95 кв м
С/у - 2,90 кв м
Ванная - 5,04 кв м
Спальня - 11,78 кв м
Гараж - 21,59 кв м
Спальня - 14,26 кв м
Спальня - 10,50 кв м
Гостиная - 29,01 кв м
Кухня - 8,80 кв м
Одноэтажный дом с гаражом и террасой Одноэтажный дом с гаражом и террасой Одноэтажный дом с гаражом и террасой Одноэтажный дом с гаражом и террасой

Модификации проектов

Внесение изменений и привязка к участку строительства

В любой из проектов от компании VIPplan - Нижнекамск по вашему желанию могут быть внесены изменения в материалы стен, материалы наружной отделки дома, а также будет произведена адаптация проекта под конкретный регион строительства (с учетом грунтов региона, геологических особенностей вашего участка и местных климатических условий) - БЕСПЛАТНО !!! (кроме проектов со скидкой и проектов наших партнеров).

Любой из проектов, размещенных на сайте nijnekamsk.vipplan.ru мы можем выполнить из требуемых вам строительных материалов: ячеистый бетон (газобетон, пеноблок), керамоблок, кирпич, шлакоблок, бетонный блок, дерево (брус, клееный брус), каркасная технология (деревянный каркас, металлокаркас (ЛСТК)).

Фасад дома и его наружную отделку так же возможно выполнить с применением различных облицовочных материалов: структурной штукатурки, (с утеплителем и без), сайдингом (пластиковый или металлосайдинг), фиброплитами, кирпича.

 
6 Избранные
проекты

Доставка проектов по России: Москва (Московская область), Санкт-Петербург (Ленинградская область), Краснодар, Ростов-на-Дону, Ставрополь, Сочи, Волгоград, Новосибирск, Белгород, Брянск, Воронеж, Саратов, Хабаровск, Астрахань, Нальчик, Владикавказ, Екатеринбург, Тюмень, Самара, Нижний Новгород, Казань, Пермь, Уфа, Челябинск, Красноярск, Ханты-Мансийск, Иркутск, Курган, Оренбург, Омск, Томск, Барнаул, Новокузнецк, Кемерово, Абакан, Чита, Якутск, Южно-Сахалинск, Петропавловск-Камчатский и страны ближнего зарубежья: Белоруссия, Украина, Казахстан